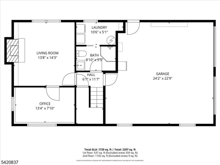
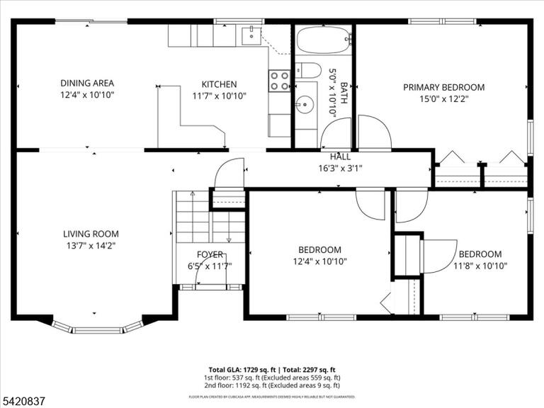
Be prepared to be impressed: fresh modern & a layout that works effortlessly for everyday living while still allowing space for a work-from-home setup. Pride in ownership runs throughout this well cared for home. This spacious home offers 3 bedrooms on the main level plus a dedicated office on the lower level that provides added privacy when needed. Gleaming hardwood flooring in the main areas crown molding & fresh paint are just a few of the details you will notice upon entering. Kitchen is purposeful & polished featuring granite counter tops custom cabinetry raised dishwasher & breakfast bar. Sliders off the dining area lead to a spacious deck well-suited for outdoor dining & entertaining. Winter views of Forest Lake from the Living Room will have you longing for those summer beach days. LL: Den w/wood burning FP, built-ins, office, 2nd bath & Laundry room. The overall feel is cohesive current & move-in ready. An open yard with an additional Lot provides approx 2/3 acre! Natural Gas lines on the property ready for conversion! Located in a highly sought-after private lake community offering a range of amenities, including a swim team adult volleyball league fishing club garden club & year-round activities & events w/optional beach membership. A home that offers a thoughtful balance of style comfort & everyday livability well suited for those looking to transition into a space that feels both elevated & easy. CA, New HWH, New septic 2019! HOME WARRANTY INCLUDED!
20 Lake View Dr, Byram Twp. NJ 07821-3157
Property Price
$539,000
Rooms
9
Bedrooms
3
Bathrooms
2.00
Year Built
1972
Tax Annual Amount
$9183
TaxYear (*text)
2025
BathroomsFull
2
Roof (*text)
Asphalt Shingle
Floors No
Carpeting, Wood
Lot Size Area
0.68
PetsAllowed (*text)
Yes
MLS Status
Active
MLS #
4018677
Yearly Tax Rate
4.019
Year Built (*numeric)
1972
Basement
Yes
Roofing (*text)
Asphalt Shingle
AssociationFee
380
Basement (*text)
Yes
Cooling (*text)
1 Unit, Central Air
FireplacesTotal (*text)
1
GarageSpaces
2
Heating
Baseboard - Electric
Lot Size Dimensions
.68 AC
Data import from
GSMLS