124 Lincoln Avenue, Carteret NJ 07008

Property City
Carteret
Property Media
Property
Property
Property
Property
Property
Property
Property
Property
Property
Property
Property
Property
Property
Property
Property
Property
Property
Property
Property
Property
Property
Property
Property
Property
Property
Property
Property
Property
Property
Property
Property
Property
Property
Property
Property
Property
Property
Property
Property
Property
Property
Property
Property Price
$520,000
Rooms
7
Bedrooms
2
Bathrooms
2
Tax Annual Amount
$12791
Lot Size Area
0.11
MLS Status
Active
MLS #
2605706R
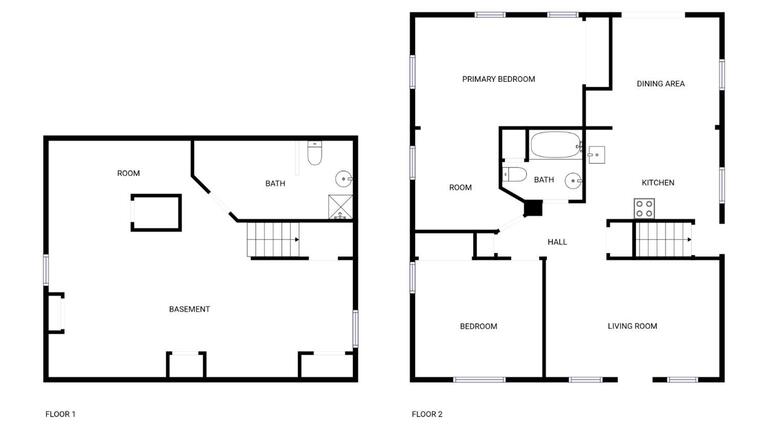
Welcome to this beautifully updated home. The interior boasts a fresh coat of neutral color paint, giving it a modern and inviting feel. The kitchen is a chef's dream with all new stainless steel appliances and an accent backsplash that adds a touch of elegance. Partial flooring replacement throughout the home adds to its charm. The exterior is just as impressive with a deck and patio perfect for outdoor entertaining. A storage shed provides extra space for your belongings. The fenced in backyard offers privacy and security. With its new appliances and tasteful updates, this home is ready for you to make it your own.. Included 100-Day Home Warranty with buyer activation
Days On Market
2
AssociationFee
0
AssociationFee2
0
CarportSpaces
0
GarageSpaces
0
Lot Size Dimensions
0.00 x 0.00
Property Location

40.5872158, -74.2256721

Geo Lat Long Proximity (field_pro_lat_long)
Units: Miles
Origin Coordinates
Value in decimal degrees. Use dot (.) as decimal separator.
buynjhome Jagdeep

Jagdeep Singh

+1(848)242-6762