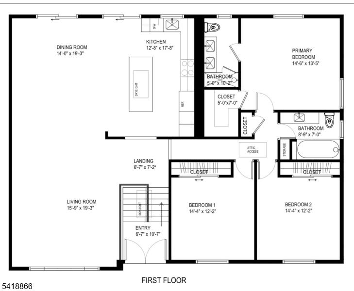
Nestled on a quiet cul-de-sac in a highly desirable location near premier shopping, dining, this beautifully appointed 4-bedroom 3 bath residence offers the perfect blend of space, style, and functionality. The home welcomes you with soaring ceilings and expansive skylights that flood the interior with natural light, creating an airy and inviting ambiance throughout.At the heart of the home lies a stunning open-concept kitchen, thoughtfully designed for both everyday living and entertaining. A massive granite island anchors the space, complemented by ample cabinetry and effortless flow into the dining and living areas. Just beyond, a sprawling deck extends off the kitchen and dining room?ideal for hosting gatherings or enjoying quiet outdoor moments.The main level features three generously sized bedrooms, including a luxurious primary suite that boasts a beautifully designed en-suite bathroom complete with a walk-in shower, elegant marble flooring, and a spacious walk-in closet.The lower level offers exceptional versatility, featuring a fourth bedroom, full bath, and living area for guests, or a private office, Direct walkout access to the patio, connecting indoor and outdoor living. Additional highlights include an attached two-car garage, full-house central vacuum system, solar panels that provide energy efficiency and long-term savings. This exceptional home combines modern comfort and design in a peaceful, commuter-friendly location.
15 Wanda Ct, Clifton City NJ 07014-1854
Property City
Clifton City
Property Price
$950,000
Rooms
14
Bedrooms
4
Bathrooms
3.00
Year Built
1982
Tax Annual Amount
$16640
TaxYear (*text)
2025
BathroomsFull
3
Roof (*text)
Asphalt Shingle
Floors No
Marble, Tile, Wood
Lot Size Area
0.11
MLS Status
Active
MLS #
4016161
Yearly Tax Rate
6.129
Year Built (*numeric)
1982
Basement
Yes
Roofing (*text)
Asphalt Shingle
Basement (*text)
Yes
Cooling (*text)
Central Air
FireplacesTotal (*text)
1
GarageSpaces
2
Heating
Baseboard - Hotwater, Multi-Zone
Lot Size Dimensions
64X115 52X48
Data import from
GSMLS