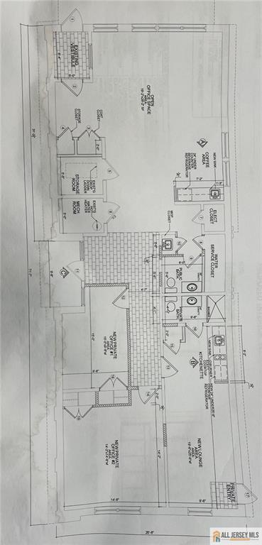
435 State Route 18, East Brunswick NJ 08816

Property City
East Brunswick
Property Media
Property
Property
Property
Property
Property
Property
Property
Property
Property
Property
Property
Property
Property
Property
Property
Property
Property
Property
Property
Property
Property
Property
Property
Property
Property
Property
Property
Property
Property
Property
Property
Property
Property
Property
Property
Property
Property
Property
Property Price
$799,000
Bathrooms
0
Tax Annual Amount
$0
Lot Size Area
0.2647
MLS Status
Active
MLS #
2660489M
Days On Market
21
Property Location

40.4453827, -74.39596

Geo Lat Long Proximity (field_pro_lat_long)
Units: Miles
Origin Coordinates
Value in decimal degrees. Use dot (.) as decimal separator.
buynjhome Jagdeep

Jagdeep Singh

+1(848)242-6762