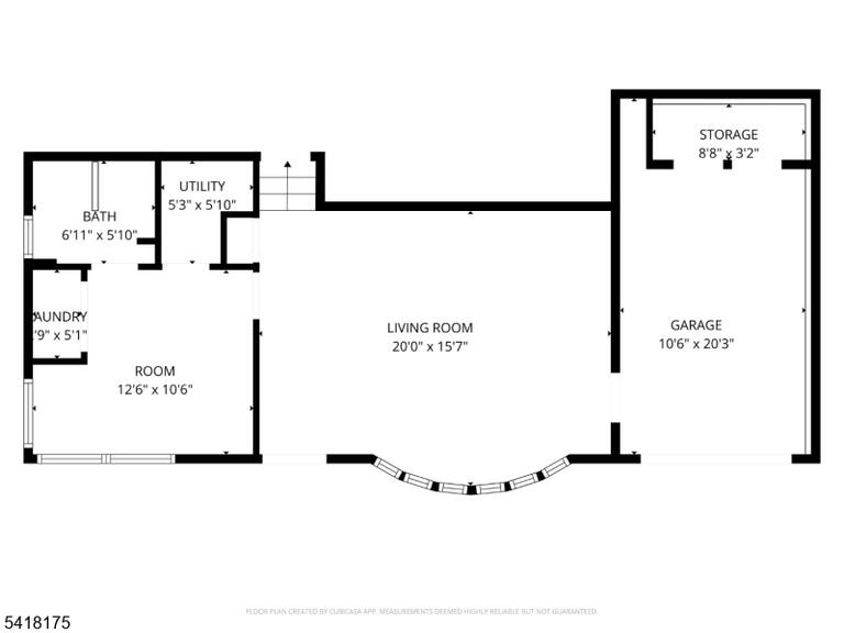
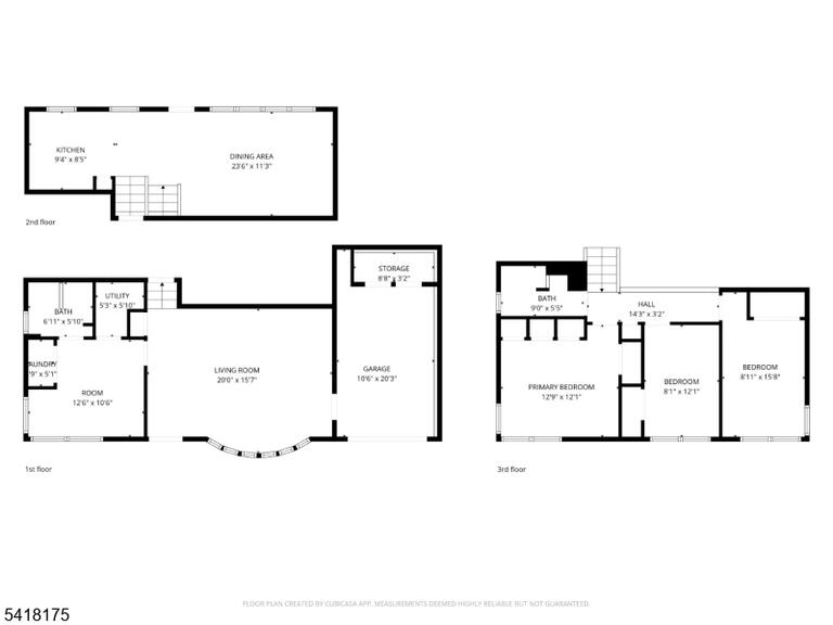
Welcome to this charming and well-maintained split-level home offering comfort, style, and functionality. Featuring 3 spacious bedrooms and 2 full bathrooms, this home showcases beautiful hardwood floors that flow throughout, adding warmth and timeless appeal.The inviting layout provides both comfortable living spaces and room to entertain, while large windows fill the home with natural light. Step outside to enjoy a stunning paver patio perfect for relaxing or hosting gatherings along with a beautifully designed paver driveway that enhances the home's curb appeal.The fully fenced backyard with a white vinyl fence offers privacy and a clean, polished look, creating an ideal space for outdoor enjoyment.This home is a perfect blend of charm and practicality ready for its next owner to move in and make it their own.
29 Arden St, Franklin Twp. NJ 08873-3017
Property City
Franklin Twp.
Property Price
$550,000
Rooms
7
Bedrooms
3
Bathrooms
2.00
Year Built
1965
Tax Annual Amount
$8766
TaxYear (*text)
2025
BathroomsFull
2
Roof (*text)
Asphalt Shingle
Floors No
Wood
Lot Size Area
0.24
MLS Status
Active
MLS #
4015406
Yearly Tax Rate
1.678
Year Built (*numeric)
1965
Basement
No
Roofing (*text)
Asphalt Shingle
Basement (*text)
No
Cooling (*text)
Central Air
FireplacesTotal (*text)
0
GarageSpaces
1
Heating
1 Unit
Lot Size Dimensions
70X150
Data import from
GSMLS