Property Price
$575,000
Rooms
8
Bedrooms
3
Bathrooms
2
Tax Annual Amount
$12503
MLS Status
Active
MLS #
2601974R
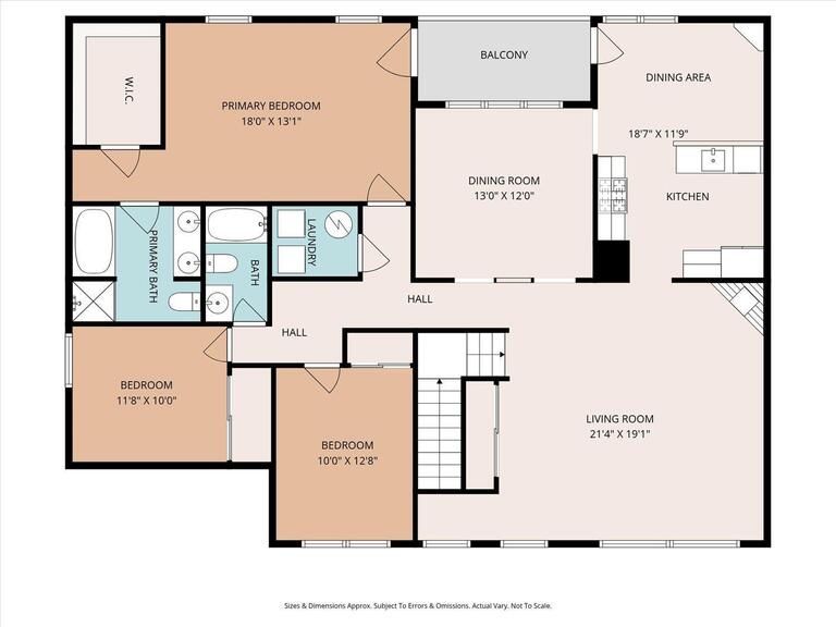
Welcome to this top floor three bedroom, two bath condo that combines space, comfort, and convenience. The location is set back in the corner off Middlesex Ave. property offers a sense of privacy while still being close to all the best of Metuchen. Lots of generous space with large living room which has a nook for office space or reading space. Open kitchen offers cooking space and dining space. Sunny balcony is set just off the eating area of kitchen, ideal for a morning coffee overlooking the back lawn. Don't miss the formal dining room, perfect size for your buffet and table and chairs. Plenty of space to entertain. Three spacious bedrooms are just down the hall. The largest, the primary offers a private bathroom and access to the balcony. What a wonderful place to call, home. Water heater 4yo, furnace 9yo and a/c 11yo. The location is unbeatable, just steps away from Downtown Metuchen, Whole Foods and the NYC train.
Days On Market
11
AssociationFee
0
AssociationFee2
0
CarportSpaces
0
GarageSpaces
0
Lot Size Dimensions
0.00 x 0.00