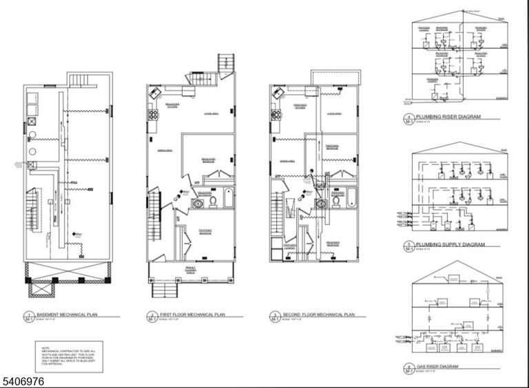
Investor Opportunity: Approved plans in place to rebuild a two-family property with 2 bedrooms and 1 full bathroom per unit (4 beds / 2 baths total), featuring a full walkout basement and attic storage. The home sits on the existing foundation with partial first-floor framing completed, reducing construction costs and increasing equity potential on the after-repair value. Located in a high-demand rental area near Robert Wood Johnson University Hospital, Rutgers University, transportation, and shopping, this is an ideal project for investors seeking strong rental demand, appreciation, and upside through a buy-and-hold or resale strategy. Approved plans in place with cost savings from the existing structure, a prime rental location, and strong upside, making this a turnkey rebuild ideal for buy-and-hold or resale with margin built in.
259 Hale St, New Brunswick City NJ 08901-2923
Property City
New Brunswick City
Property Price
$399,000
Bedrooms
4
Year Built
1920
Tax Annual Amount
$2212
TaxYear (*text)
2025
Roof (*text)
Asphalt Shingle
Lot Size Area
0.06
MLS Status
Active
MLS #
4015485
Yearly Tax Rate
2.688
Year Built (*numeric)
1920
Basement
Yes
Roofing (*text)
Asphalt Shingle
Days On Market
0
Basement (*text)
Yes
Cooling (*text)
2 Units, Central Air
Heating
2 Units
Lot Size Dimensions
025X100
Data import from
GSMLS