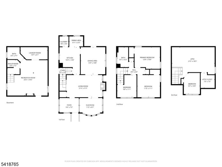
Welcome to 23 Varsity Rd, an updated 3 br home in one of the most desirable neighborhoods in Newark! This charming colonial features a versatile layout designed for both everyday living and entertaining. The main level offers a spacious living area with beautifully finished hardwood floors, abundant natural light, and a seamless flow into a formal dining room w/ direct access to the back deck, creating an indoor-outdoor connection that's perfect for entertaining! The updated eat in kitchen boasts modern finishes, ss appliances, pantry, & dining area that's perfect for morning coffee. Upstairs, you'll find 3 bedrooms and a full bathroom. The partially finished attic has another finished room that can be a home office, or bedroom. The finished basement expands your living space even further, offering a large finished area that can serve as a recreation room, along with a laundry area, half bath, and additional storage. One of the standout features of this property is the expansive, fully fenced backyard - an exceptional outdoor retreat with plenty of room for entertaining, gardening, or future enhancements! The rear deck is the best setting for relaxing or hosting in warmer months. The private driveway fits up to 4 cars! Located in close proximity to Newark Airport, and less than 2 miles from S. Orange Train Station (direct access to NYC), Seton Hall University, and S. Orange Village with shopping, restaurants, and more. BONUS - Includes 1 year home warranty included!
23 VARSITY RD, Newark City NJ 07106-2918
Property City
Newark City
Property Price
$425,000
Rooms
9
Bedrooms
3
Bathrooms
1.10
Year Built
1952
Tax Annual Amount
$5610
TaxYear (*text)
2025
BathroomsFull
1
Roof (*text)
Asphalt Shingle
Floors No
Wood
Lot Size Area
0.14
MLS Status
Active
MLS #
4015962
Yearly Tax Rate
3.999
Year Built (*numeric)
1952
Basement
Yes
Roofing (*text)
Asphalt Shingle
Basement (*text)
Yes
Cooling (*text)
1Unit,None,WallUnit
FireplacesTotal (*text)
1
GarageSpaces
0
Heating
1 Unit, Radiators - Steam
Data import from
GSMLS