7 North Street, Old Bridge NJ 08857

Property City
Old Bridge
Property Media
Property
Property
Property
Property
Property
Property
Property
Property
Property
Property
Property
Property
Property
Property
Property
Property
Property
Property
Property
Property
Property
Property
Property
Property
Property
Property
Property
Property
Property
Property
Property
Property
Property
Property
Property
Property
Property
Property
Property
Property
Property
Property
Property
Property
Property
Property
Property
Property
Property Price
$549,000
Rooms
6
Bedrooms
3
Bathrooms
2
Tax Annual Amount
$7052
Lot Size Area
0.5418
MLS Status
Active
MLS #
2660482M
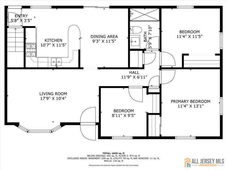
Welcome to this charming ranch-style home situated on a generous lot in the highly desirable community of Old Bridge, New Jersey. This home offers 3 comfortable bedrooms and 1.5 bathrooms, providing both function and convenience. The main floor features all three bedrooms, a full bathroom, a welcoming living room, and a dining room/kitchen combination designed for everyday living and entertaining. The fully finished basement expands your living space and includes a half bath, making it ideal for a family room, recreation area, or home office. Outside, the expansive yard offers endless opportunitieswhether you envision a garden, a play area, or an outdoor oasis, the space is yours to create. Located in Old Bridge, this home benefits from a vibrant township known for its excellent schools, abundant shopping, and diverse dining options. Commuters will appreciate convenient access to major highways, bus routes, and nearby train stations, making travel to New York City and throughout New Jersey seamless. With an abundance of parks, recreational programs, and community events, Old Bridge offers a wonderful blend of suburban comfort and modern accessibility. This property presents a fantastic opportunity to enjoy all that Old Bridge has to offer in a home that's ready for its next chapter.
Days On Market
18
AssociationFee
0
AssociationFee2
0
CarportSpaces
0
GarageSpaces
0
Lot Size Dimensions
100X236
Property Location

40.3944765, -74.3681626

Geo Lat Long Proximity (field_pro_lat_long)
Units: Miles
Origin Coordinates
Value in decimal degrees. Use dot (.) as decimal separator.
buynjhome Jagdeep

Jagdeep Singh

+1(848)242-6762