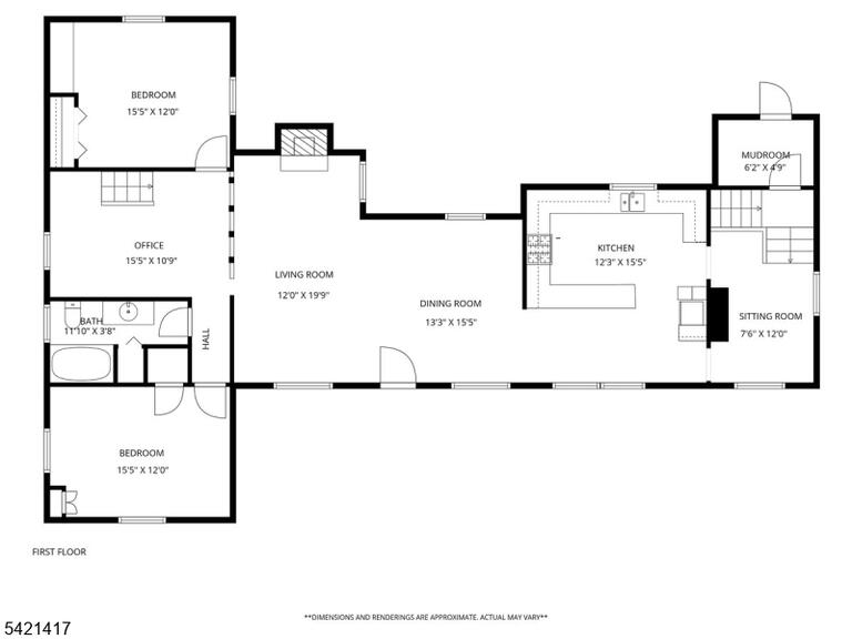
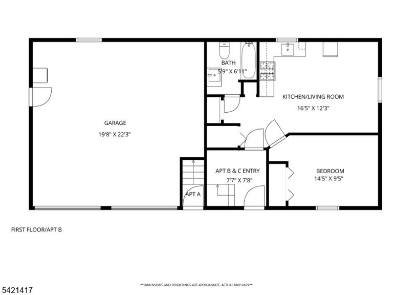
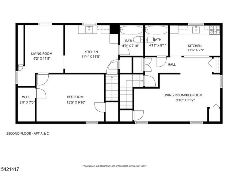
You turn into the driveway and the space immediately stands out, 2.57 level acres offering room, privacy, and clear potential just minutes from Flemington. Inside, the layout opens with a kitchen and breakfast bar flowing into the living and dining area with a fireplace, plus a den or office, two bedrooms, and a full bath on the main level, while upstairs includes a primary suite, an additional bedroom, another full bath, and walk in attic storage. The home is fully dated and in need of renovation throughout. Outside, a detached two car garage includes three separate living spaces, and a 1,800 square foot masonry barn previously used for horses, offering significant flexibility and potential. This property is being sold strictly AS IS. Ideal for contractors, flippers, or investors looking for a full renovation project with strong upside, not suited for a traditional homeowner seeking move in condition.
100 Old Croton Rd, Raritan Twp. NJ 08822-5925
Property City
Raritan Twp.
Property Price
$449,900
Rooms
8
Bedrooms
4
Bathrooms
3.00
Year Built
1950
Tax Annual Amount
$14554
TaxYear (*text)
2025
BathroomsFull
3
Roof (*text)
Asphalt Shingle
Floors No
Carpeting, Tile, Wood
Lot Size Area
2.57
PetsAllowed (*text)
Yes
MLS Status
Active
MLS #
4018832
Yearly Tax Rate
3.029
Year Built (*numeric)
1950
Basement
Yes
Roofing (*text)
Asphalt Shingle
Basement (*text)
Yes
Cooling (*text)
Ceiling Fan
FireplacesTotal (*text)
1
GarageSpaces
2
Heating
1 Unit, Baseboard - Hotwater, Multi-Zone
Lot Size Dimensions
2.5700
Data import from
GSMLS