9-B Melborn Drive # 9B, Monroe NJ 08831

Property City
Monroe
Property Media
Property
Property
Property
Property
Property
Property
Property
Property
Property
Property
Property
Property
Property
Property
Property
Property
Property
Property
Property
Property
Property
Property
Property
Property
Property
Property
Property
Property
Property
Property
Property
Property
Property
Property
Property
Property
Property
Property
Property Price
$389,900
Rooms
7
Bedrooms
2
Bathrooms
2
Tax Annual Amount
$3348
Lot Size Area
0.1382
MLS Status
Active
MLS #
2604540R
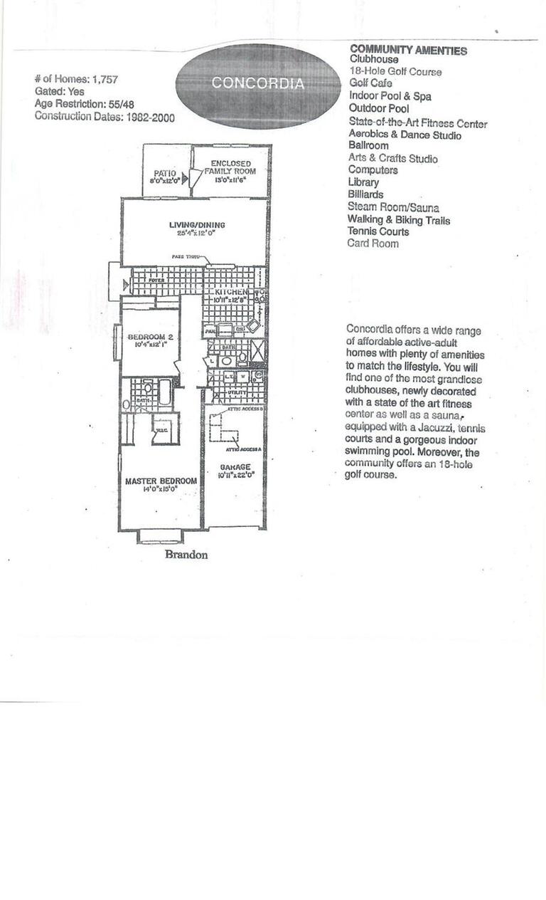
This updated home can be move in ready. It features a beautiful sun-room with updated kitchen and bathrooms. Enjoy the amenities of a 55+ community. Be minutes away from golfing, shopping, the highway and house of worships.
Days On Market
16
AssociationFee
497
AssociationFee2
0
CarportSpaces
0
GarageSpaces
1
Lot Size Dimensions
0.00 x 0.00
Property Location

40.3137931, -74.4387952

Geo Lat Long Proximity (field_pro_lat_long)
Units: Miles
Origin Coordinates
Value in decimal degrees. Use dot (.) as decimal separator.
buynjhome Jagdeep

Jagdeep Singh

+1(848)242-6762